2444 S Williams StreetDenver, CO80210
Due to the health concerns created by Coronavirus we are offering personal 1-1 online video walkthough tours where possible.




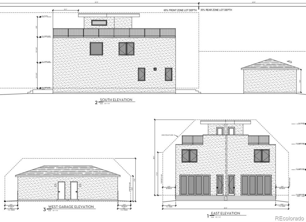
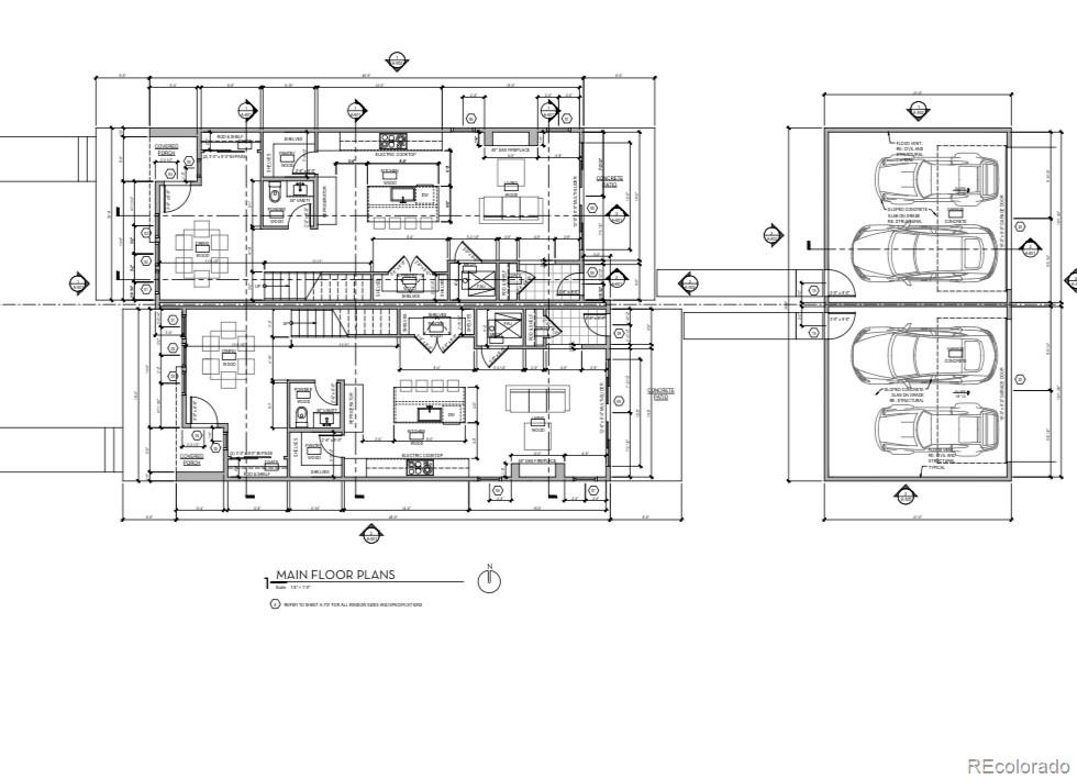
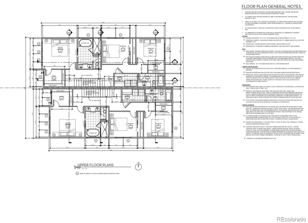
An exceptionally rare opportunity to acquire a truly build-ready lot in one of Denver’s most sought-after neighborhoods. This 6,250-square-foot parcel is zoned E-TU-C. The demo of the existing house is already complete, footers are in, and all of the other heavy lifting has been done. Over $150,000 already into the build. The lot is permit-ready, with extensive due diligence and preparation completed, saving a future buyer significant time, cost, and uncertainty. Included are architectural drawings, survey, soil reports, and all critical pre-construction work required to move efficiently toward permitting. Opportunities like this where a buyer can step in and build immediately rather than wait months or years are increasingly rare. The surrounding block showcases active redevelopment and luxury construction, including high-end duplex's nearby, reinforcing both the upward trajectory of values and the demand for quality new builds in the area. This is a street where modern architecture and thoughtful development are already setting the tone. Located in Harvard Gulch, this site offers the perfect blend of neighborhood charm and urban convenience. Enjoy immediate access to Harvard Gulch Park and Golf Course, tree-lined streets, and a strong sense of community all while being minutes from Wash Park, Old South Pearl, South Broadway, and some of Denver’s best dining, coffee, and boutique shopping. Easy connectivity to downtown and DTC makes this location as practical as it is desirable. Whether you’re a builder, developer, or end-user looking to create something exceptional, this is a turnkey land opportunity in a proven, high-demand neighborhood where vision can become reality without the usual delays.
| 3 weeks ago | Listing updated with changes from the MLS® | |
| 3 weeks ago | Price changed to $849,000 | |
| a month ago | Listing first seen on site |

The content relating to real estate for sale in this Web site comes in part from the Internet Data eXchange ("IDX") program of METROLIST, INC., DBA RECOLORADO real estate listings held by brokers other than Alpha Real Estate Associates LLC are marked with the IDX Logo. This information is being provided for the consumers' personal, non-commercial use and may not be used for any other purpose. All information subject to change and should be independently verified.


Did you know? You can invite friends and family to your search. They can join your search, rate and discuss listings with you.