6847 E 149th AvenueThornton, CO80602
Due to the health concerns created by Coronavirus we are offering personal 1-1 online video walkthough tours where possible.




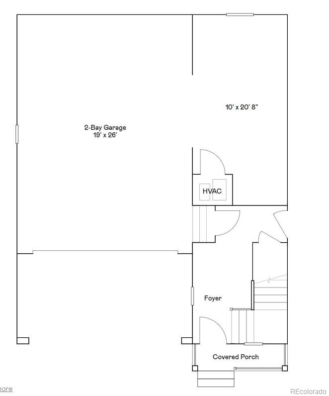
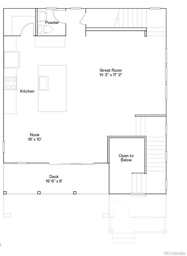
**Eligible for 3.75 FHA 5/1 ARM or 3.99% fixed rate on eligible clearance homes when using builder’s preferred lender – terms and conditions apply – ask for details****Contact us today about our Special Financing - terms and conditions apply**Welcome to the Skyline Collection and the Vista, a three-story home designed to grow with you. The open-concept second floor creates a natural gathering space where the kitchen, dining, and living areas come together. Upstairs, three comfortable bedrooms include a relaxing owner’s suite with a spa-inspired bath and walk-in closet, plus a conveniently placed laundry room for added comfort and convenience. The city has something to offer residents in all walks of life, with upscale shopping and dining available at nearby Denver Premium Outlets and plenty of options for recreation at Trail Winds Recreation Center. Move in Ready.
| 5 hours ago | Listing updated with changes from the MLS® | |
| 6 hours ago | Listing first seen on site |

The content relating to real estate for sale in this Web site comes in part from the Internet Data eXchange ("IDX") program of METROLIST, INC., DBA RECOLORADO real estate listings held by brokers other than Coldwell Banker Realty 56 are marked with the IDX Logo. This information is being provided for the consumers' personal, non-commercial use and may not be used for any other purpose. All information subject to change and should be independently verified.


Did you know? You can invite friends and family to your search. They can join your search, rate and discuss listings with you.