4041 W Hayward PlaceDenver, CO80212
Due to the health concerns created by Coronavirus we are offering personal 1-1 online video walkthough tours where possible.




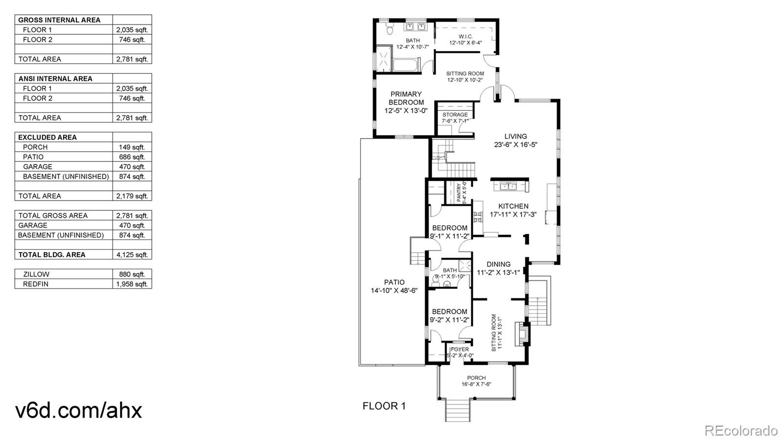
Set on a prominent corner lot in the heart of the West Highlands, this exceptional property pairs timeless character with a stunning modern expansion. Extensively renovated and thoughtfully reimagined, the residence offers updated systems, generous scale, and a layout designed to support both privacy and effortless gathering. The original portion of the home retains its charm, featuring inviting living and dining spaces, a wood-burning fireplace, and two multi- purpose rooms connected by a Jack-and-Jill layout. The newly completed addition introduces a dramatic main living room, a ground-floor primary suite, ample storage throughout, and, upstairs, two additional large bedrooms with a full bath. The finished basement adds even more versatility, with a bathroom, utility area, and a private-entry suite ideal for visitors or potential rental opportunities. Outdoor living is a true highlight. A welcoming front porch, expansive patios, and a spacious, fully fenced yard create multiple settings for relaxing or entertaining. The two car detached garage provides the ultimate convenience with access via an automatic gate and electric wiring for workshop, studio or EV use. West Highlands remains one of Denver’s most coveted neighborhoods, known for its leafy streets and easy access to Highlands Square, Tennyson Street, Sloan’s Lake, and a vibrant mix of dining, boutiques, and cultural destinations. Downtown and major commuter routes are only minutes away. This is a move-in-ready property where classic architecture meets modern livability, offering space, style, and exceptional flexibility in a premier location.
| 5 hours ago | Listing updated with changes from the MLS® | |
| 6 days ago | Status changed to Active | |
| 6 days ago | Listing first seen on site |

The content relating to real estate for sale in this Web site comes in part from the Internet Data eXchange ("IDX") program of METROLIST, INC., DBA RECOLORADO real estate listings held by brokers other than 8z Real Estate are marked with the IDX Logo. This information is being provided for the consumers' personal, non-commercial use and may not be used for any other purpose. All information subject to change and should be independently verified.


Did you know? You can invite friends and family to your search. They can join your search, rate and discuss listings with you.