1956 Crested Lark StreetFort Collins, CO80528
Due to the health concerns created by Coronavirus we are offering personal 1-1 online video walkthough tours where possible.


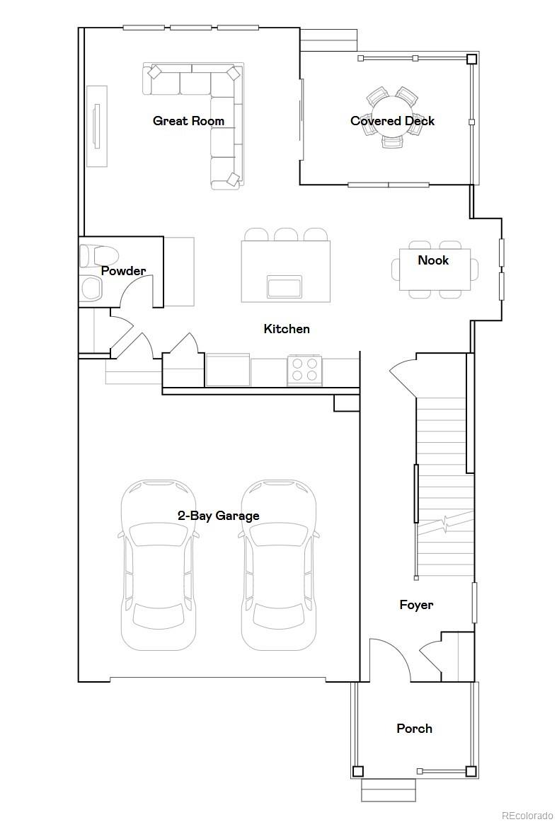
**Contact builder today about Special Financing for this home - terms and conditions apply.**Welcome to Timber Lark, a thoughtfully designed community in southeast Fort Collins offering convenient access to shopping, dining, and everyday amenities, along with neighborhood open spaces and a community playground. This community is not located in a Metro District, helping reduce overall property tax costs, and low monthly HOA dues cover common area maintenance and snow removal, as well as trash and recycling service. This paired home features an open and inviting main level where the kitchen, dining nook, and great room connect seamlessly, creating an ideal space for both everyday living and entertaining. The kitchen is centered around a spacious island with ample prep space and seating, while the adjacent covered deck extends your living area outdoors. Upstairs, the owner's suite offers a private retreat with a walk-in closet and en-suite bath, complemented by two additional bedrooms, another full bathroom, and a versatile loft that can function as a second living area, office, or play space. A convenient upstairs laundry room adds everyday functionality, and the 2-car attached garage provides additional storage. Finished with a distinctive high country-inspired exterior, this home blends mountain-influenced style with modern comfort. Estimated completion August 2026.
| 17 hours ago | Listing updated with changes from the MLS® | |
| 17 hours ago | Listing first seen on site |

The content relating to real estate for sale in this Web site comes in part from the Internet Data eXchange ("IDX") program of METROLIST, INC., DBA RECOLORADO real estate listings held by brokers other than Kittle Real Estate are marked with the IDX Logo. This information is being provided for the consumers' personal, non-commercial use and may not be used for any other purpose. All information subject to change and should be independently verified.

